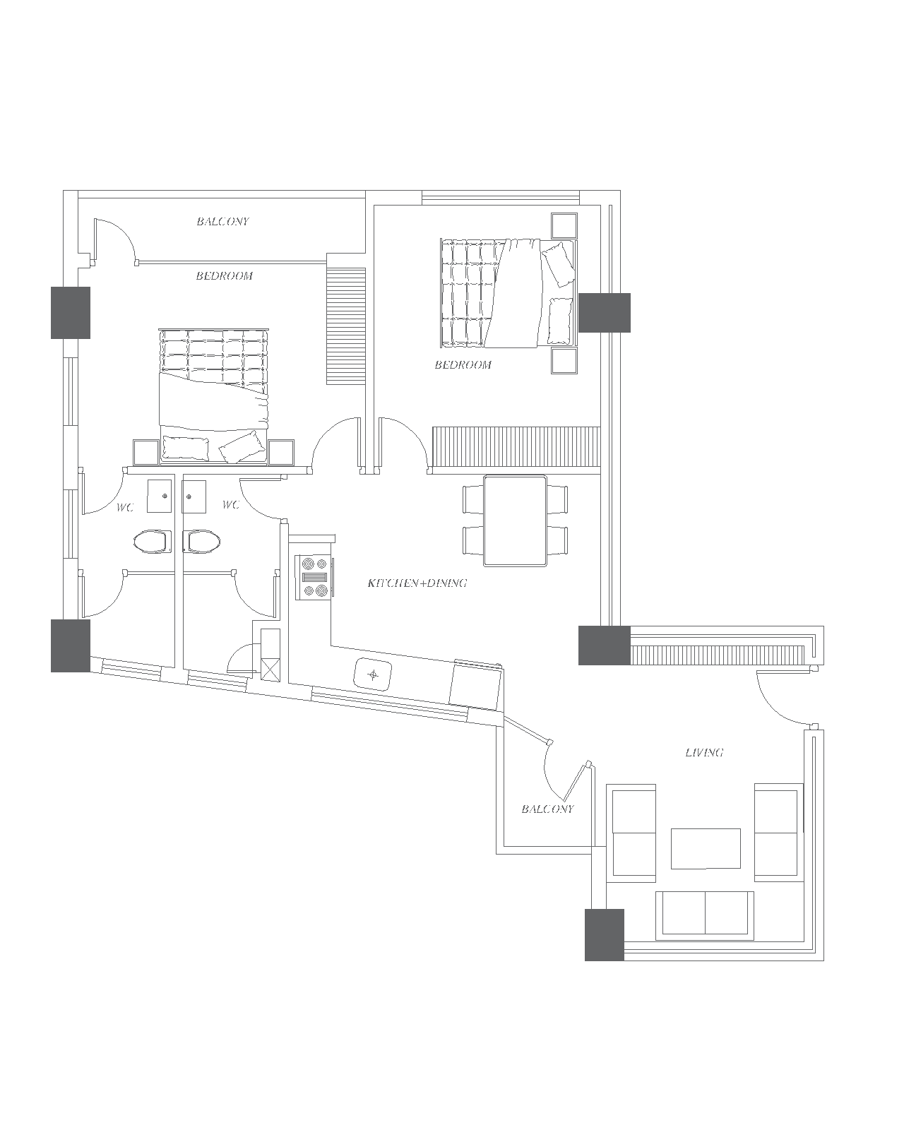
UNIT B Info
2BHK
Features b
-
Cavity Wall for Sound Proofing
-
Laminated Floorings
-
Sanitaryware From KOHLER (Or Equivalent)
-
Modern Stainless-Steel Accessories from KICH (Or Equivalent)
-
Modular Kitchen by Kitchen Concept (Or Equivalent)
-
Minimalist Designer Doors
-
Sunlight All Year Round
-
Motion Sensor for Energy Efficiency
-
Smart Switches
-
24/7 Power Back Up
Unit B Gallery
- Photos
- Video